Seinätikkaan mitoitus- ja asennusohjeet
Tältä sivulta löydät kaiken suunnittelutyössäsi tarvittavan tiedon seinätikkaasta. Vesivekin Helmi-tikas sopii muotoilunsa ansiosta käytettäväksi sekä seinätikkaana että lapetikkaana.
Seinätikkaan tekniset tiedot
- Runkojen pituudet 1,8 m, 2,4 m, 3,0 m ja 4,2 m ja ne ovat jatkettavissa. Tikkaan johteiden sisäpuolinen leveys on 400 mm.
- Jalkojen pituudet: 0,175 m, 0,40 m, 0,60 m, 0,80 m, 1,0 m, 1,2 m ja 1,5 m. Tikkaan jaloissa on valmiina kolme reikää, joten esim. 1,0 m tikkaan jalasta voidaan katkaisemalla tehdä helposti 0,90 m tai 0,80 m tikkaan jalka.
- Tikkaan runko ja tikkaiden jalat valmistetaan 45x25x1,25 mm kuumasinkitystä ovaaliputkesta. Helmi-tikkaassa askelputki on karhennettu ja muotoiltu pisaran muotoon.
Seinätikkaan määräykset
- Seinätikkaat mahdollistavat turvallisen katolle pääsyn. Ne ovat lakisääteiset kaikissa kiinteistöissä, joissa katolla suoritetaan nuohous- ym. huoltotöitä.
- Seinätikas suositellaan asennettavaksi aina rakennuksen päätyyn, mikäli mahdollista. Päätytikas asennetaan samalle kohtaa kuin kattosilta (max. 3 m harjalta). Näin tikas ei joudu alttiiksi lumikuormille ja yläkaaret saadaan tukevasti kiinni kattosiltaan.
- Mikäli seinätikas sijoitetaan sivuräystään puolelle, suositellaan lumiestettä asennettavaksi tikkaan kahta puolen.
- Mikäli nousukorkeus on yli 8 m, tulee tikas varustaa nousuturvakiskolla tai selkäkaarilla. Lisäksi RT ohjekortti suosittelee, että yli 10 m korkeisiin tikkaisiin tulisi asentaa lepotasoja enintään 6 m välein.
- Räystäspellin päälle suositellaan asennettavaksi liukueste tai kattosilta liukastumisen estämiseksi (RT 85-11132).
Seinätikkaan asennus
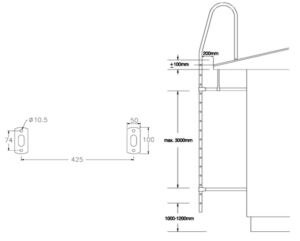
- Tikkaan rungon pituus on yleensä yhtä suuri kuin matka maasta räystäälle – 0,8m.
- Tikkaan ylimmän askeleen etäisyys tulee olla + – 0,1m räystään tasalta.
- Normaalille sivuräystäälle riittävät 1 m mittaiset jalat ja päätyräystäälle 0,8m jalat.
- Tikkaan alimman askelman etäisyys maasta on noin 1,0–1,2m.
- Jalkojen kiinnitykset tapahtuvat ko. kuvien mukaisesti.

Kiinnitys- ja asennusohjeet eri seinämateriaaleille
Täältä löydät seinätikkaan kiinnitys- ja asennusohjeet eri seinämateriaaleille, piirustukset ja DWG-tiedostot.
Lämpörapattu seinä

Seinätikkaan kiinnitys- ja asennusohjeet lämpörapatulle seinälle, piirustukset ja DWG-tiedostot.
Paroc-seinä

Seinätikkaan kiinnitys- ja asennusohjeet paroc-seinälle, piirustukset ja DWG-tiedostot.
Pystyranka-, rappauslevy- ja rappausseinä

Seinätikkaan kiinnitys- ja asennusohjeet pystyranka-, rappauslevy- ja rappausseinälle, piirustukset ja DWG-tiedostot.
Tiedostopankki
Vesivekin tiedostopankista löydät tuotteiden sertifikaatit, varmennustodistukset, määräykset, tuotetakuut ja huolto-ohjeet helposti samasta paikasta.
Oletko jo lukenut nämä artikkelit?
Vesivek turvaa Finlaysonin alueen City View -kattokävelyreitin
Suomen ensimmäinen kattokävely sijoittuu Tampereen Finlaysonin alueen historiallisten rakennusten katoille. Tampereen ikonisia...
Taysin kattoturva ajan tasalle
Julkisissa, isoissa kiinteistöissä kattoturvalle asetetaan erityisen suuret vaatimukset. Tiloissa liikkuvien ihmismassojen turvallinen...
Vesivekin kädenjälki näkyy Kansiareenan katoilla
Rakennuttajana ja myös osaomistajana Kansiareena hankkeessa toimii SRV. Vesivek on SRV:n pitkäaikainen yhteistyökumppani ja toimittaa sekä asentaa myös Kansiareenalle runsaan määrän erilaisia tuotteita.
Haluatko lisätietoja teknisestä tuesta tai jättää tarjouspyynnön?



